Marlenheim (67520) À vendre – Appartement T1 avec balcon à Marlenheim
À vendre – Appartement T1 avec balcon à Marlenheim
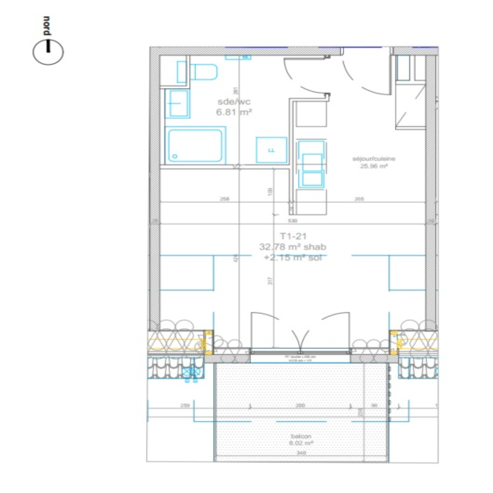
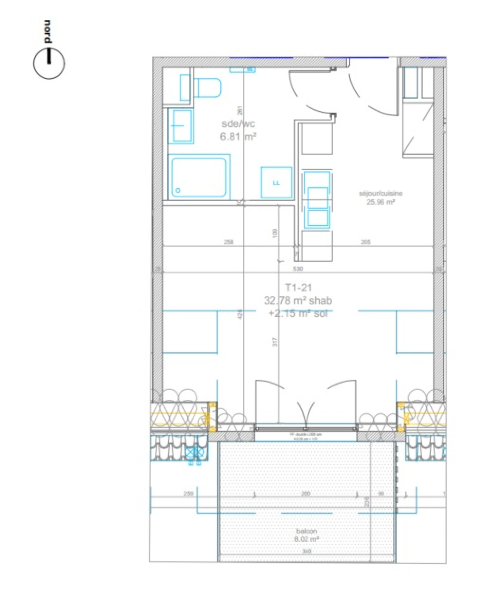
Situé au 2ème étage d’une résidence neuve à Marlenheim, cet appartement de type T1 d’une surface habitable de 32,77 m² offre confort et fonctionnalité.
Il se compose de :
- Une pièce de vie lumineuse avec cuisine ouverte (25,96 m²)
- Une salle d’eau avec WC (6,81 m²)
- Un balcon de 8,02 m² orienté sud, idéal pour profiter des beaux jours
Prestations :
- Résidence neuve
- Pompe à chaleur collective air-eau basse température avec production d’eau chaude sanitaire
- Double vitrage
Localisation : Au cœur de Marlenheim, à proximité immédiate des commerces, services, écoles et des transports.
Surface habitable : 32,77 m²
Balcon : 8,02 m²
Résidence : neuve – normes RT 2020
Bien soumis au statut de la copropriété
Nombre de lots principaux : 23 appartements
Prix : 125.590 €
Honoraires d’agence à la charge du vendeur
Possibilité d’acquérir garage (14.000€) et place de parking (5.000€) en sus
Société LUDIIMMO – Sébastien OFFNER
14 Rue Beethoven, 67150 GERSTHEIM
SIRET : 931 187 397 00019
Carte professionnelle n° : CPI67012024000000042
Délivrée par la CCI de Alsace Eurométropole
Valable jusqu'au : 04/09/2027
Garant : GALIAN pour un montant de 120.000,00 €
Médiateur : ANM CONSOMMATION, 2 Rue de Colmar 94300 VINCENNES – contact@anm-conso.com
Les caractéristiques Du bien
Les infos Financières
La base légale du traitement repose sur l’intérêt légitime de l'Agence / du Réseau.
Elles sont conservées jusqu'à demande de suppression et sont destinées à l'Agence / au Réseau.
Conformément à la loi « informatique et libertés », vous pouvez exercer votre droit d'accès aux données vous concernant et les faire rectifier en contactant l'Agence / le Réseau.
Si vous estimez, après avoir contacté l'Agence / le Réseau, que vos droits « Informatique et Libertés » ne sont pas respectés, vous pouvez adresser une réclamation à la CNIL.
Nous vous informons de l’existence de la liste d'opposition au démarchage téléphonique « Bloctel », sur laquelle vous pouvez vous inscrire ici : https://www.bloctel.gouv.fr
Dans le cadre de la protection des Données personnelles, nous vous invitons à ne pas inscrire de Données sensibles dans le champ de saisie libre
Ce site est protégé par reCAPTCHA, les Politiques de Confidentialité et les Conditions d'Utilisation de Google s'appliquent.
Détails des diagnostics énergétiques
À vendre – Appartement T1 35,24m² avec balcon à Marlenheim
